 
          
        
          
          
        
       
          
        
          
          
        
       
          
        
          
          
        
      Hanson ARU
Two soon-to-be-married professionals wanted to build a small, progressively designed residence they could use as a vacation home with the option for expansion into a future full-time residence. The project site is a 50 ft. x 150 ft. parcel in East Jackson. With a modest budget in mind, the space and overall design needed to be efficiently sized, yet still provide ample room for the couple and their two children, strong enough to stand alone, and able to serve as a complimentary structure to the main house in the future. The clients’ desires also included the implementation and use of low or no-maintenance materials since the home would only be used seasonally.
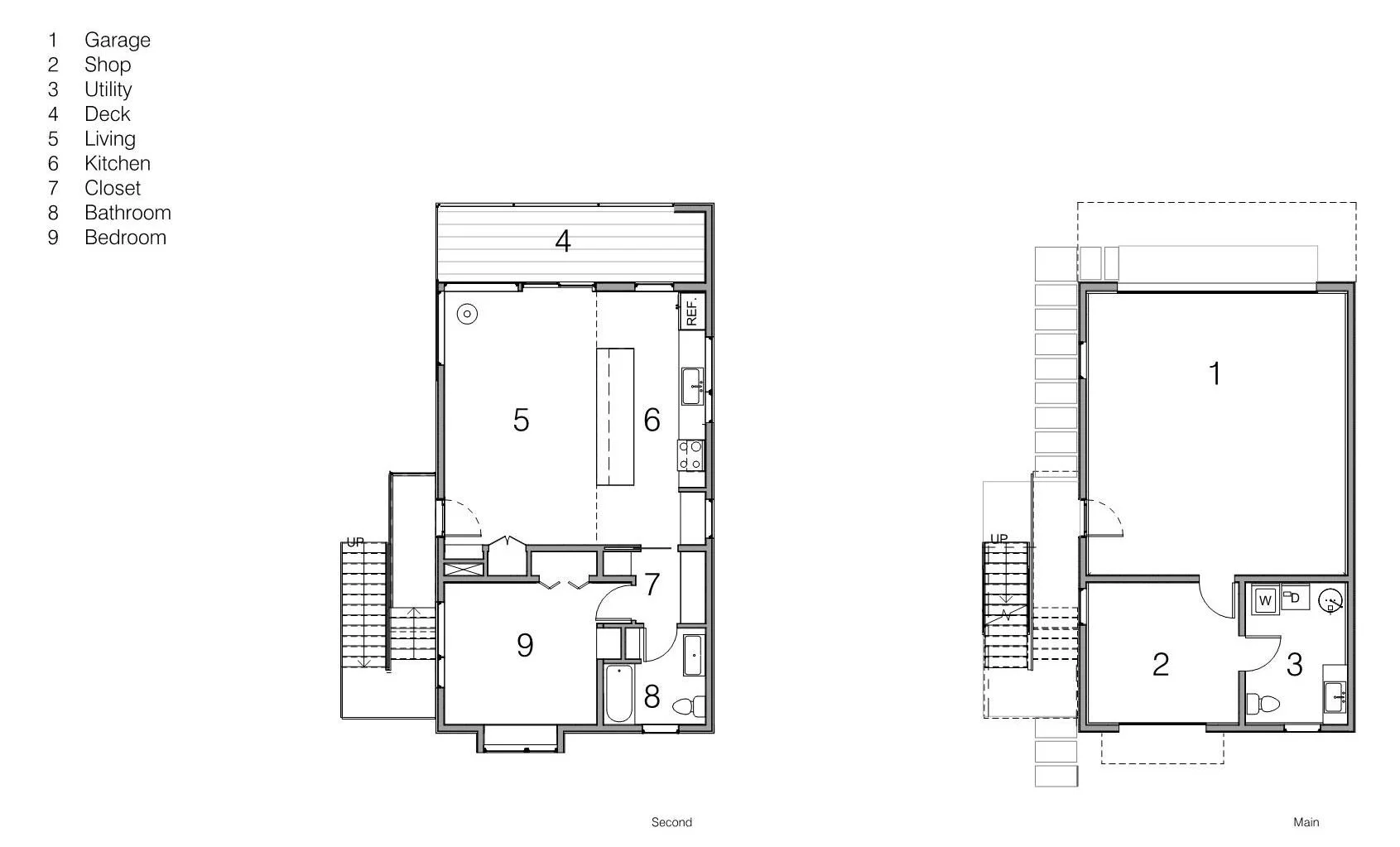
The design intent was to create a simple form with a concentrated architectural gesture focused towards the north to embrace the surrounding views of the Teton Range. The north deck provides this focus, expanding the views from the 800 square feet of upper living space that includes the double-height living room on the north side and a separated private area on the south side. The openness creates a gracious sense of volume and stunning views of the mountains. The additional ceiling height allowed for a loft providing additional storage space, a high priority for our clients who cherish the many recreational activities the Jackson Hole valley has to offer. The combination of the corrugated metal, painted cement board, and resin-coated wood siding offer rich color and texture with the added benefit of requiring very little care.
